Parking space drawings detail 2d view plan autocad software file
Description
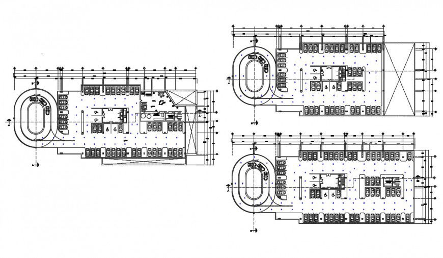
Parking space drawings detail 2d view plan autocad software file that shows parking space details along with 90-degree parking system details. Dimension section line detail and ramp details also included in drawings.
Uploaded by:
Eiz
Luna

